SAC VE PROFİL KUMLAMA MAKİNALARI

MODELLERİMİZ
MODEL Giriş Genişliği Giriş Yüksekliği

Türbin Adeti

MCB-151550600

4-6

MCB-202050600

6

MCB-252550600

8

MCB-303050600

8

TÜRBİNLERİMİZ
MODEL

Türbin Çapı

EBT-1

380 Motor Akuple

EBT-2

420 Motor Akuple

EBT-3

520 Motor Akuple

EBT-4

520 Kayış Kasnak

 
Kumlama makinalarının ömrü ve performansı kullanılan seperatör sistemi ve filtrasyon sistemi ile orantılıdır. Tüm kumlama sistemlerinde üç yönlü havalı seperatör sistemi kullanılmaktadır.
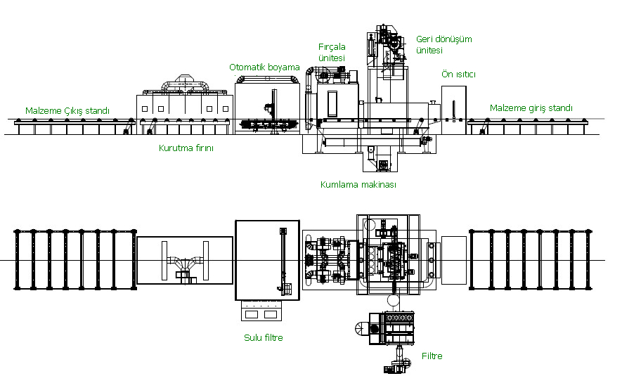
Değişik ebatlarda kumlama makinası, otomatik boyama hatları üretimimiz dahilindedir.


© Copyright 2011 MCB Mühendislik Sanayi Tic. Ltd. Şti. Her Hakkı Saklıdır.
Bu Web Sitesi AFN Bilgisayar Tarafından Yapılmıştır.